Heron Design
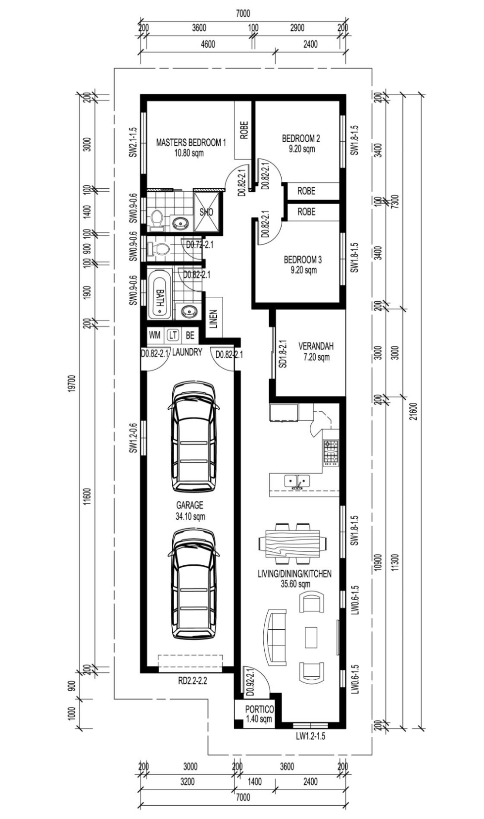
3
2
2
146 ㎡
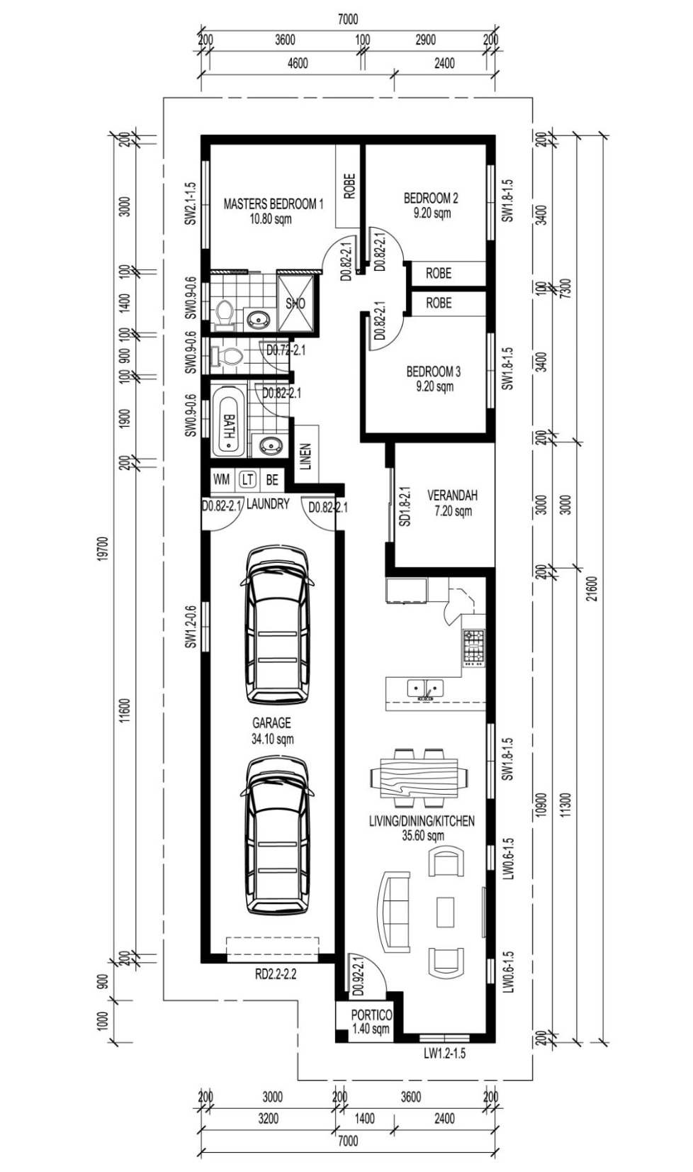
3
2
2
146 ㎡
Locally owned and operated in the Sunshine Coast Queensland, the Vanguard Homes team has an extensive background and years of experience in building quality homes.
We ensure professionalism through performance, delivering the highest quality on all building projects on time and on budget - that's why we strongly believe in delivering a range of lifestyle options in our chosen markets. As a family owned company we understand the needs of our customers and are never satisfied until you are.
Call Now: 0428 083 604 and 0418 369 197
Admin@vanguardhomes.com.au
C
© Copyright
Vanguard Homes